Palais
des Congrès

Rome, Italie

00_centre-de-congres-rome_plan-masse

Concours pour la réalisation d’un palais des congrès.

Projet d’un complexe comprenant :
salle de Congrès 10 000 places
salle de musique 2 500 places
galerie commerciale
espaces d’exposition
parking souterrain sur 3 niveaux


Équipe
Alessandro Menase
Ursula Biuso


MOA
Ville de Rome


Stade
concours


Année
1998


Mission
concours


Surface
parcelle 30 850 m2


MOE
Alessandro Menase Architectes
Ursula Biuso Architecte

Le concours

Le concours pour le Centre des Congrès de Rome, qui a eu lieu en 1998 a recueilli environ 350 propositions, dont la nôtre. Sa construction a tenu la presse en haleine en Italie et à l’étranger jusqu’à la réalisation de l’édifice qui ne s’est achevée qu’en 2016.

Le projet réalisé ne s’est pas fait remarquer lors de l’exposition de tous les projets de concours affichés dans le Palais des Expositions à Rome, et c’est au grand étonnement de tous qu’il est apparu gagnant dans la presse quelque mois après. D’ailleurs, une série de remaniements du projet gagnant est apparue bien après les années qui ont suivi le concours de 1998, au point de laisser penser qu’il a dû s’inspirer de toutes les belles propositions qui n’ont pas été sélectionnées.

En tous cas, cette expérience a été très formatrice pour ma profession d’architecte, me permettant de me mesurer aux plus importantes agences européennes de l’époque, mais également aux jeunes architectes amis et confrères, avec lesquels j’ai partagé mes années de formation à la faculté d’architecture de Rome de La Sapienza. Cet édifice, par sa taille immense, semblait nous apporter l’espoir d’un monde nouveau, bien loin de la crise économique qui nous attendait, et encore plus loin de l’urgence qui, aujourd’hui, nous oblige à nous engager pour la planète.

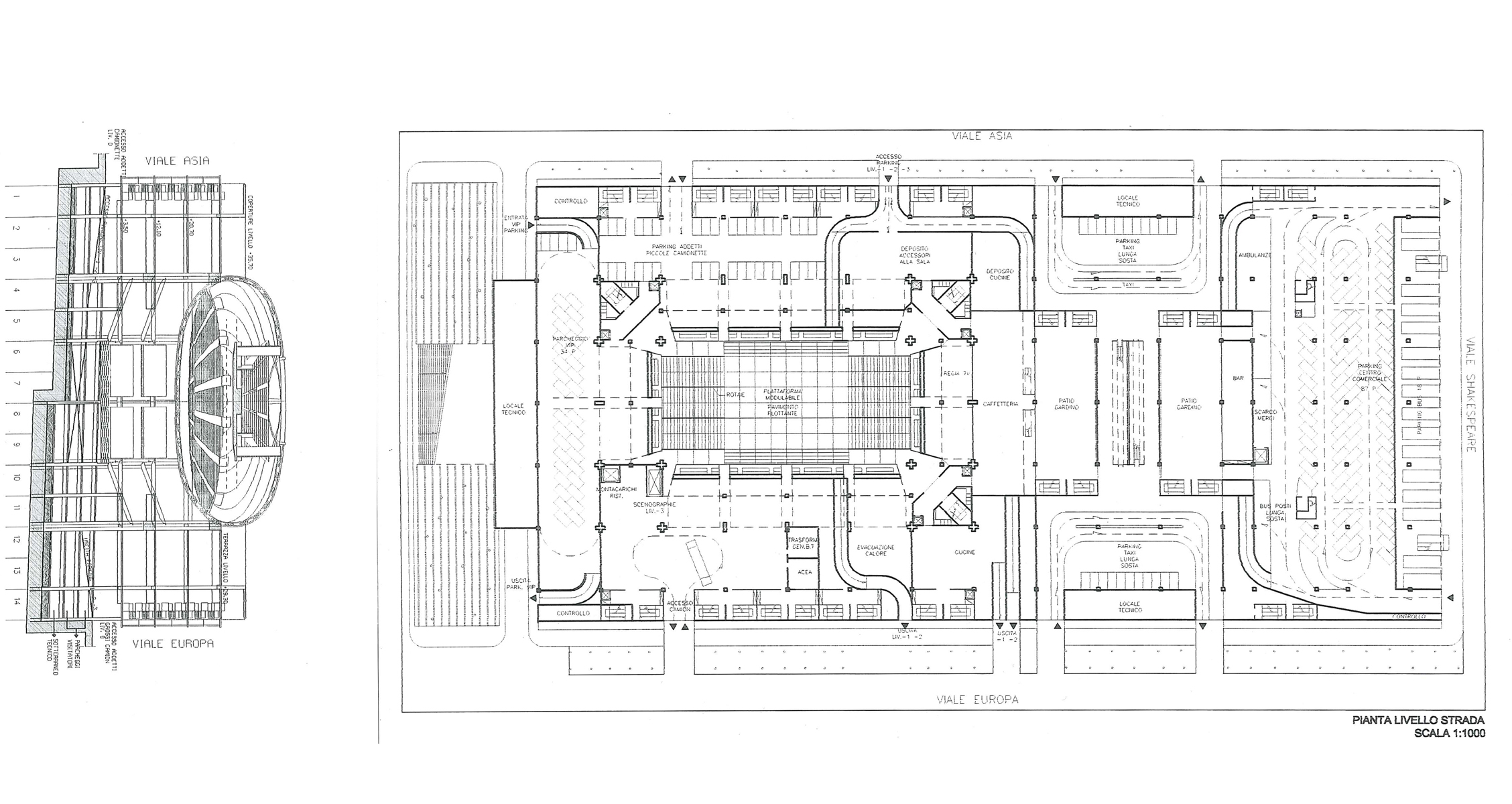
Le programme, très ambitieux mais ouvert à la réversibilité des espaces, couvrait une parcelle de 30 850 m2 placée en épingle contre la plus grande artère urbaine de Rome (cardus) et parallèlement au decumanus du quartier de l’Eur. Les espaces devaient contenir 3 salles de 10 000, 2 500 et de 750 places, et il était prévu que les 3 salles devaient pouvoir fonctionner en même temps, comportant une complexité de gestion d’évacuation de 13 250 personnes.

Notre proposition

Notre réponse a consisté à placer la salle de 10 000 places au RDC, partiellement couverte par une plaza soulevée par rapport à la chaussée, surmontée par une salle contenant 2 500 personnes portée par une mégastructure que nous avons conçu avec un ingénieur (je ne me souviens malheureusement plus de son nom, dommage!) qui avait fait ses armes projetant les premières rampes de lancement d’Ariane Espace. Le défi était immense, et nous avons adoré travailler sur ce projet avec cet homme de grande expérience. La dernière salle de 750 places était prévue en extérieur afin de profiter de la vue et du climat italien.

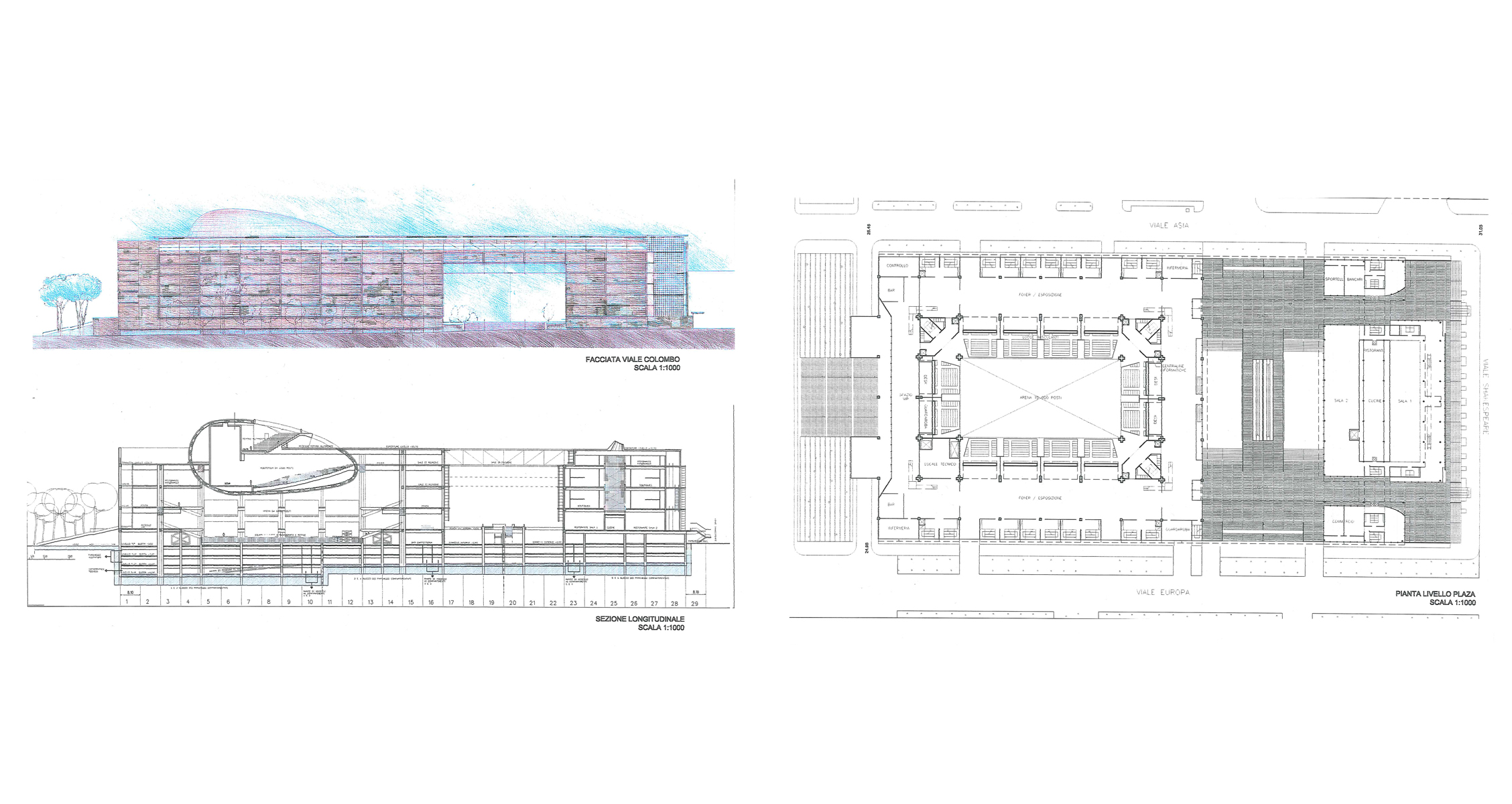
Au sous-sol, nous avons aménagé 2 niveaux et demi de parking, niveaux inclinés profitant de la pente du terrain. Cette inclination nous a permis de réaliser des rampes d’accès plus courtes, gagnant ainsi de la surface utile. Les façades entièrement vitrées et revêtues de brise-soleils recouverts de cuivre, filtraient la présence des nombreuses escaliers tout en s’imposant sur le contexte urbain de l’Eur, caractérisé par la blancheur des marbres mussoliniens, les palais vitrés de tinte bleu-vert des années 60 ou noires-grises des années 70.

La forme des façades reproduisait l’emprise de la parcelle tout en s’ouvrant latéralement par une double grande percée menant à la plaza, sorte d’espace extérieur, mais protégé par le mur rideau des façades et par les deux corps d’édifice, les services d’une part et les salles de spectacle et de conférence d’autre part. Cette monumentalité, parfaitement justifiée dans le quartier de l’Eur, permettait de mettre à l’échelle l’édifice avec les chefs d’œuvres d’architecture que ce quartier accueille.

Un programme fonctionnel

La salle de 10 000 places, telle que demandée dans le programme, nous a semblé une installation utopique, trop grande pour être exploitée de manière rentable. Nous avons alors proposé, dans un souci de réversibilité, de la constituer d’une combinaison de volumes modulaires et divisibles permettant une plus grande flexibilité des espaces. Par l’installation de cloisonnements amovibles et de plateformes inclinables avec sièges escamotables, nous proposions des combinaisons des supports modulables adaptés à l’exposition et à l’auditorium. Une machine infernale dont nous nous sommes délectés, tout en sachant que cela aurait été une occasion unique, par son pure irréalisme proche de la folie économique, mais pas si loin d’une réalité structurelle et fonctionnelle. Quel architecte pourrait se soustraire à ce rêve ?

La salle de 2 500 places portée par 4 tours dissimulées dans l’implantation de la grande salle, contenait services, stockage ou escaliers. 2 immenses poutres en treillis portaient en civière la charge des deux salles supérieures, enveloppées dans une sorte de cocon que nous avions appelé « œuf« . Nous avons du mal, encore à ce jour, à nous convaincre que la ressemblance entre notre œuf et la « nuvola » du projet qui a été finalement réalisé, ne s’agit que d’une coïncidence.

Cet œuf, suspendu à 20,70 m du sol, d’un diamètre de 58 m, offrant une surface d’environ 2650 m2 et revêtu de cuivre, servait à envelopper la salle de 2 500 places tout en constituant par son ventre le plafond acoustique de la grande salle inférieure. A la jonction de l’œuf avec sa structure porteuse, des grandes estrades situées au 4ème étage donnaient l’accès aisément au théâtre à ciel ouvert et permettaient de distribuer les foyers, les espaces de circulation et la terrasse.

La scène de la salle de 2500 places, haute de 24 m permettant de suspendre et de stocker les décors en hauteur, demeurait cachée dans le volume de l’œuf, tout en servant de front de décor de la scène de la salle à ciel ouvert accueillant les 750 dernières places. Tout a été prévu, à partir des cabines de régie et de traduction simultanée, jusqu’au système de désenfumage actionné par des lucernaires placés en couverture de l’œuf.

Depuis la grande terrasse en toiture on pouvait circuler librement jusqu’à atteindre la vue plongeante sur la grande plaza ouverte. Le front du grand bloc contenant les salles de concert s’ouvrait directement sur la grande plaza par des grandes vitres du même module que celles des façades extérieures, mais entièrement transparentes et rythmées par des poteaux de couleur cuivre rappelant l’enveloppe extérieure.

La plaza, protégée mais en même temps très ouverte, était percée en son centre par des escalators amenant au niveau de la chaussée. De la végétation animait et ravivait l’espace dans le but de lui rendre une échelle plus humaine. Les voitures et les parkings se trouvant plus bas, libéraient le site des nuisances sonores et visuelles.

L’édifice de clôture, fermant l’autre côté de la plaza, sorte d’anti-pole conçu pour recevoir bureaux, boutiques, restaurants, bars, et salles de sports, retrouvait sa communication avec le grand bloc des salles de concerts par le biais de passerelles aériennes adossées aux 2 façades longitudinales, permettant et justifiant ainsi la forme à portique de 2 grandes ouvertures.

L’enveloppe de l’ensemble semble se fermer à la ville pour retrouver des accès privilégiés. Là aussi le projet réalisé semble s’en être inspiré, mais sans oser le faire jusqu’au bout. Seulement des escaliers externes seront réalisés (plutôt que ceux au cœur de la plaza) aujourd’hui mal utilisables car ils dévalent sur la chaussé ayant consommé tout l’espace du trottoir. Des barrières provisoires sont aujourd’hui installées sur les côtés de l’édifice indiquant qu’il est impossible d’emprunter ces escaliers, tout en interrompant la promenade sur le trottoir. Comment laisser irrésolu le problème de l’évacuation de l’ensemble de l’édifice ? A ce jour, l’édifice réalisé est dans l’incapacité de recevoir le nombre des personnes comme prévu dans le programme, car le nombre de sorties de sécurité utilisables n’est pas suffisant.

De ce projet ne m’est resté que le ton polémique, mais je garde le fort souvenir d’une belle aventure de jeunesse. Aujourd’hui j’aurais conçu ce lieu plus humblement, dans l’espoir de ne pas le destiner à devenir une monumentale « ruine du contemporain ». Notre contemporanéité s’impose par rapport à hier, nous sommes obligés de préférer la modestie à la démesure. J’aurais aussi pensé y porter plus de réversibilité, même si déjà – il y a désormais 20 ans – j’en avais eu quelque part l’intuition.