Loft à Clichy

Paris, 75018

00_plan-masse_architecte_patrimoine_atelier_u3a_biuso_projet_paris_appartement-tibery_maquette

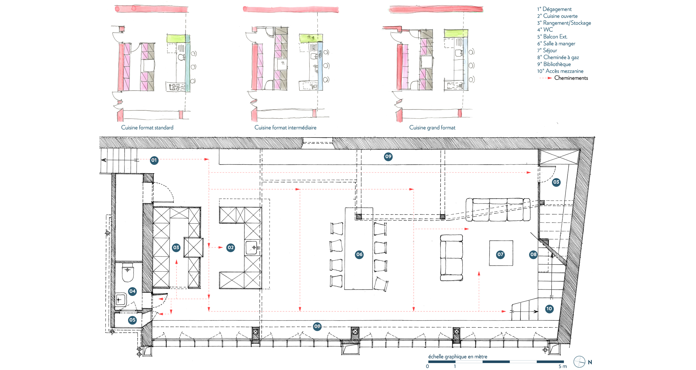
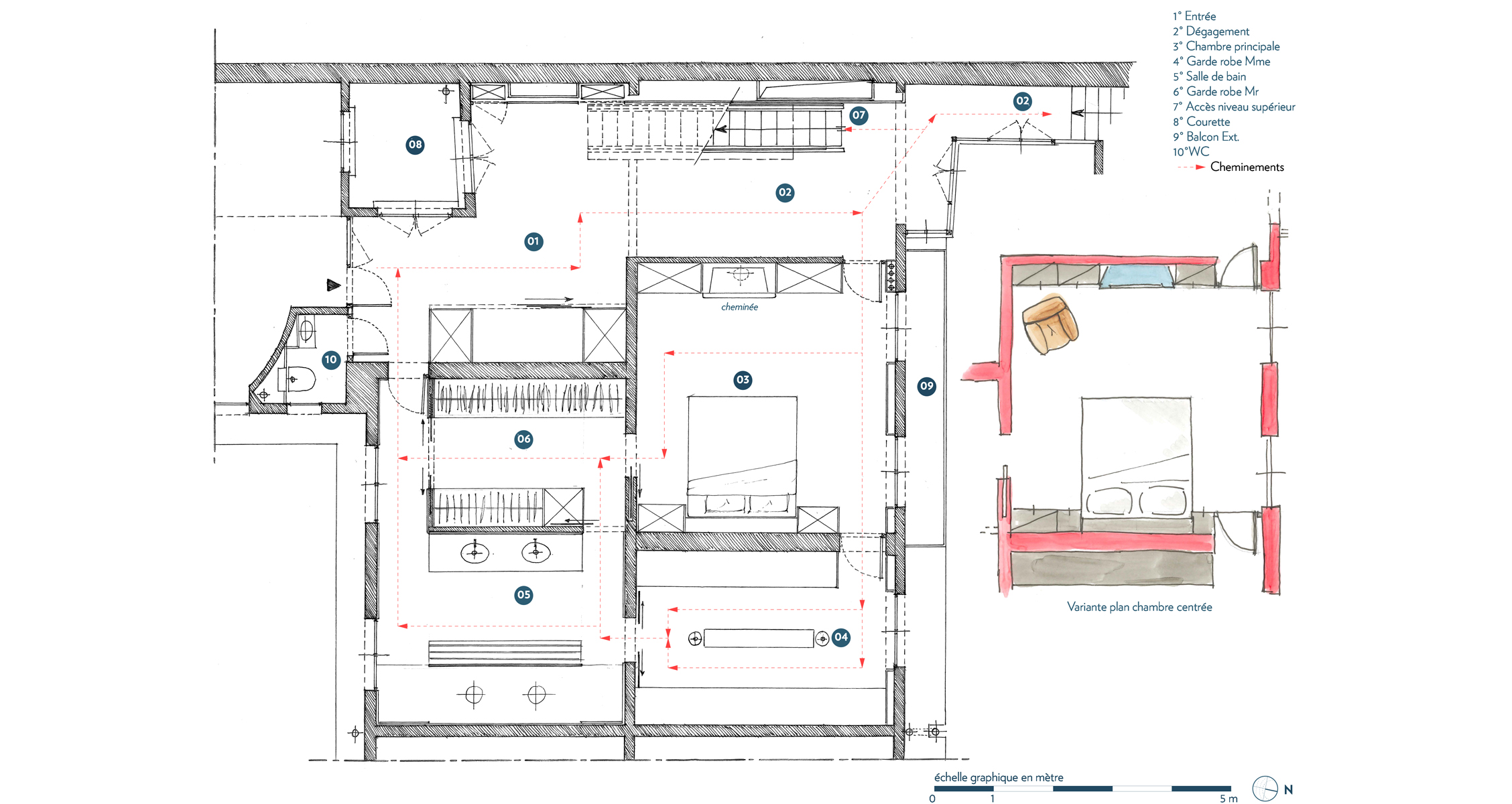
Réaménagement d’un loft.


Époque
fin XIXe siècle


MOA
privé


Stade
étude


Année
2016


Mission
esquisse


Surface
350 m2


MOE
Atelier U3A