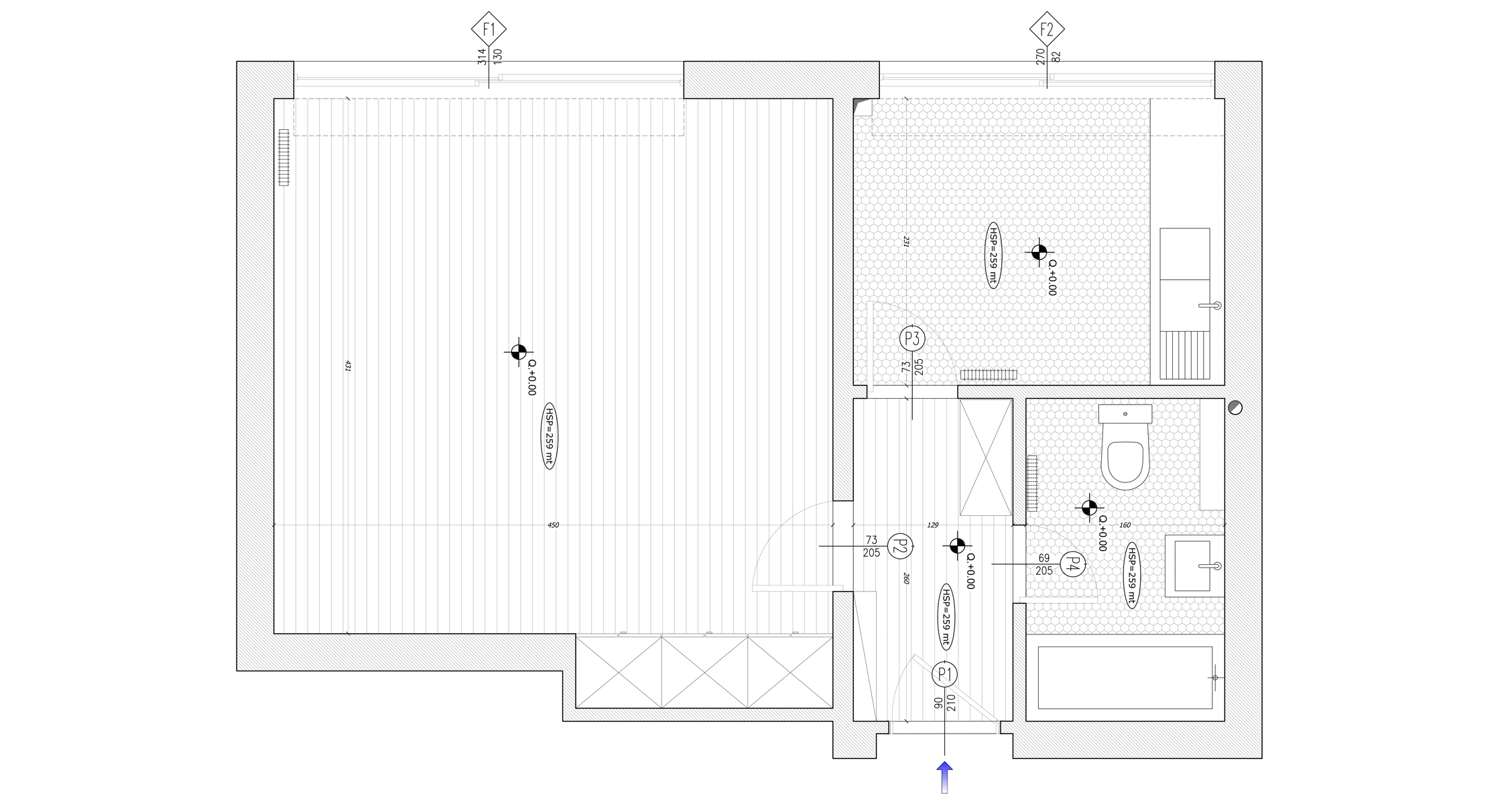
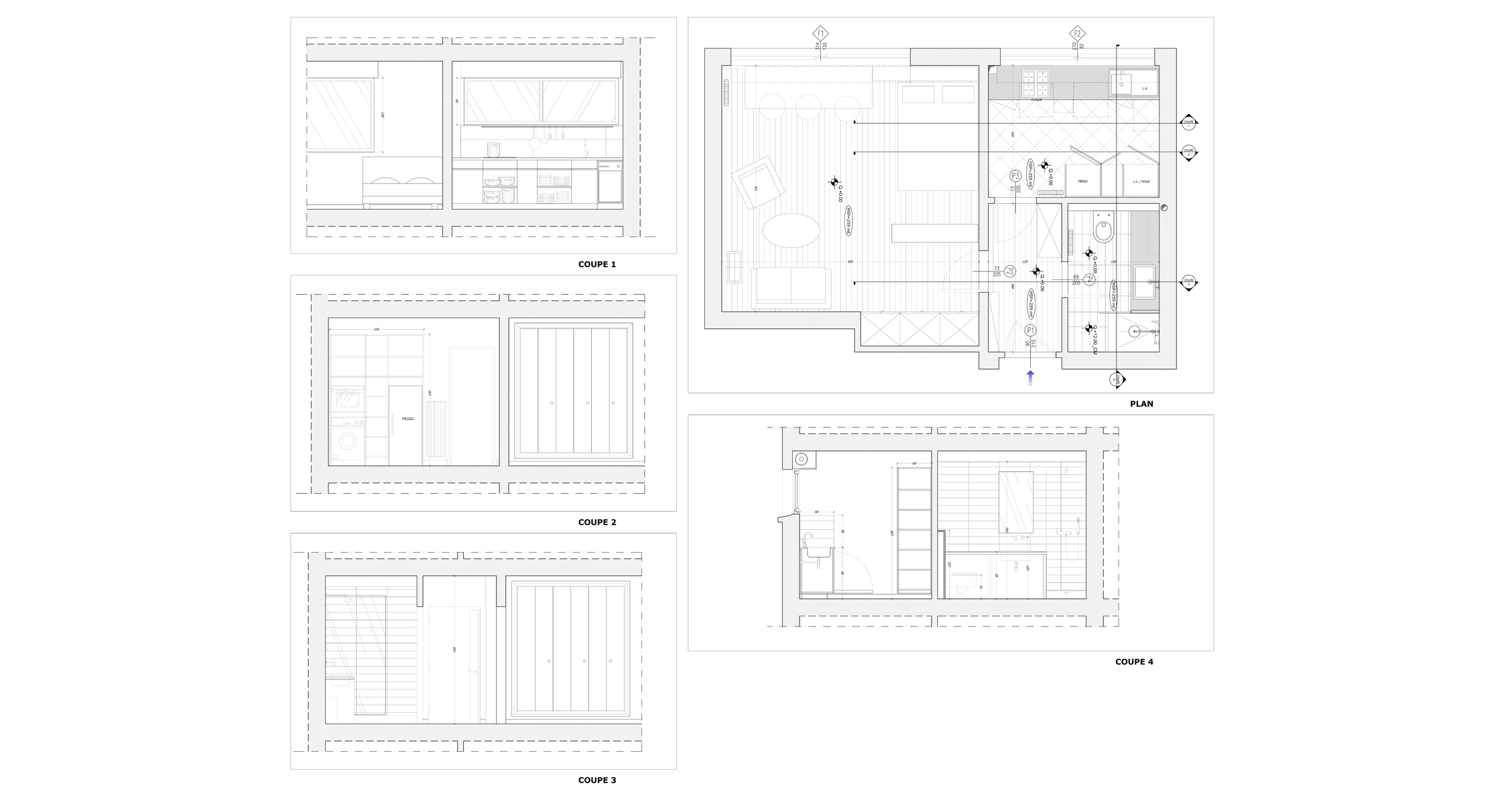
Appartement
Gallieni

Boulogne Billancourt, 92100

00_plan-masse_architecte_patrimoine_atelier_u3a_biuso_projet_boulogne_appartement

Réaménagement d’un appartement.


Époque
XXe siècle


MOA
privé


Stade
livré


Année
2008


Mission
complète


Surface
50 m2


MOE
Biuso Architectes